T.L.C. Designers Inc.

599 Northfield Ct       

 

770.995.3008 Bus

 
Lawrenceville GA 30045  

770.962.2837  Fax

 
   

678.643.1430 Cell

 

Plan Number

98011

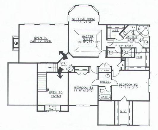
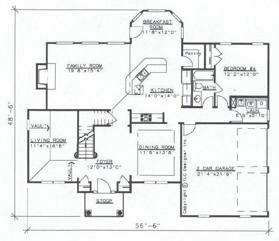
Main  1622 sq ft
Upper 1200 sq ft
Total 2822 sq ft

2 Story and Upper Stairs 513 sq ft

 

Our pages are best viewed at 800 X 600 resolution with Netscape 4.0 or Explorer 4.0 or higher.

 Floor plans and elevations are subject to change. Floor plan dimensions are approximate.
Consult working drawing for actual dimension and information. Elevations are artists' conceptions

send comments about this site to Webmaster@TLCdesigners.com
 
Site created by Tim L Carver       ©Copyright T.L.C. Designers Inc,       2002     Last revised: October 30, 2002